電話でのお問い合わせは0739-20-6815
〒646-0002 和歌山県田辺市上万呂5‐24
| 名称 | 南紀の台戸建 | |
|---|---|---|
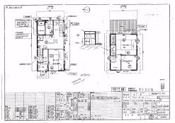
| 外観・間取り図 | ![]() ![]() |
|
| 位置図 | ||
| 所在地 | 西牟婁郡上富田町南紀の台22番20号 | |
| 交 通 | JR紀伊田辺駅より明光バス南和歌山医療センター経由白浜行約16分 神島台バス停下車徒歩車で約12分 |
|
| 敷地面積 | 234.28u(70.86坪) | |
| 価 格 | 980万円 | |
| 間取り | 3DK 1階:和6、DK、洗面脱衣、バス、トイレ 2階:和8、洋4.5、バルコニー | |
| 建物面積 | 69.00u(20.87坪) 1階:40.24u 2階:28.76u | |
| 駐車場 | 有 | |
| 築年月 | 昭和58年11月 | |
| 構 造 | 軽量鉄骨造亜鉛メッキ鋼板葺2階建 | |
| 土地権利 | 所有権 | |
| 地 目 | 宅 地・山林 | |
| 都市計画 | 区域内:無指定 | |
| 建ぺい率 | 60% | |
| 容積率 | 200% | |
| 接道状況 | 西側 公道:幅員約4.5m 間口約13m | |
| 取引態様 | 仲 介 | |
| 備 考 | 未登記倉庫有 | |
| お問合せ先 | 岡田不動産 URL E-mail: 〒646-0002 和歌山県田辺市上万呂5-24 TEL 0739-20-6815 FAX 0739-20-4370 |
|