電話でのお問い合わせは0739-20-6815
〒646-0002 和歌山県田辺市上万呂5‐24
| 名称 | 白浜町堅田戸建 | |
|---|---|---|
| 外観・間取り図 | ![]() ![]() |
|
| 位置図 | ||
| 所在地 | 西牟婁郡白浜町堅田1233番15 | |
| 交 通 | JR白浜駅まで約2q(車で約5分) | |
| 敷地面積 | 156.74u(47.41坪) | |
| 価 格 | 500万円 | |
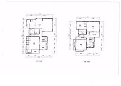
| 間取り | 4LDK 1階:LDK15、和10、浴室、トイレ 2階:洋10、洋8、洋4.5、トイレ、ベランダ | |
| 建物面積 | 145.53u(44.02坪) 1階:85.91u(25.98坪) 2階:59.62u(18.03坪) | |
| 駐車場 | 有 | |
| 築年月 | 平成2年9月 | |
| 構 造 | 木造瓦葺2階建 | |
| 土地権利 | 所有権 | |
| 地 目 | 宅 地 | |
| 取引態様 | 仲 介 | |
| 備 考 | ※入居中 | |
| お問合せ先 | 岡田不動産 URL E-mail: 〒646-0002 和歌山県田辺市上万呂5-24 TEL 0739-20-6815 FAX 0739-20-4370 |
|